Vecāķi

19500
19900 €

Cena (ar PVN): 19500
19900 €

ATLAIDE
ATLAIDE
ATLAIDE
ATLAIDE
ATLAIDE
ATLAIDE
ATLAIDE
ATLAIDE
ATLAIDE

Apraksts

caret-down
  • Iespējama pārplānošana pēc Jūsu vēlmēm;
  • Izgatavojam individuālus projektus bez papildus samaksas;
  • Par papildus samaksu iespējamas biezākas sienas (68mm, 90mm, 135mm u.c.);
  • Par papildus samaksu iespējama grīdas, jumta un sienu siltināšana.
  • Attēlos redzamās mājas papildaprīkojums:
    • Sienu siltināšanas komplekts (150mm akmensvates iestrādei) + 4900Eur
    • Jumta siltināšanas komplekts 1600Eur
    • Premium klases vissezonas māju logi, ārdurvis un iekšdurvis + 2500Eur
    • Logu un durvju rūpnieciska krāsošana + 1900Eur

Komplektācijā iekļauts

caret-down
  • Mājas sienas no 44mm frēzētām brusām (egle);
  • Impregnētas pamatu brusas;
  • Jumts no 19 mm spundētiem dēļiem, vēja dēļi;
  • Grīda no 28 mm spundētiem dēļiem, grīdlīstes;
  • Impregnēti 28mm biezi terases dēļi;
  • Koka rāmju logi un durvis ar stikla paketēm;
  • Logu un durvju blīvgumijas;
  • Logi atverami divās pozīcijās;
  • Logi ar metāla ārējo palodzi;
  • Durvis un logi ar pilnu furnitūras komplektu;
  • Pieslienamas trepes uz otro līmeni;
  • Montāžas instrukcija.

Tehniskā informācija

caret-down
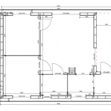
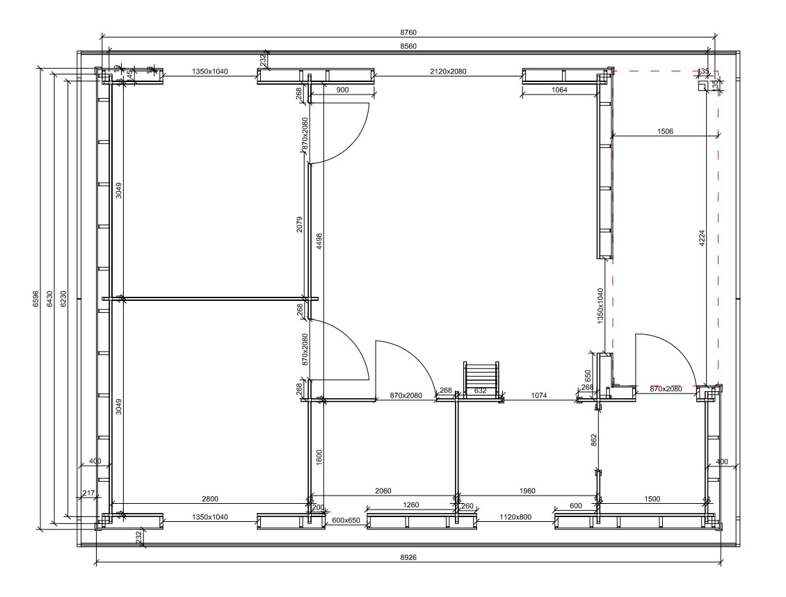
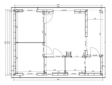
Sienu biezums (mm):
44mm
Iekšējā platība (m²):
44.32
Stāvu skaits:
1
Jumta forma:
Divslīpju
Mājas forma:
Četrstūra
Telpu skaits:
Vairāk kā trīs
Ārējais izmērs (m):
8.56 x 6.23
Apbūves platība (m²):
53.33
Jumta platība (m²):
73
Jumta pārkare priekšā (m):
1.75
Zemākās sienas augstums (m):
2.34
Kores augstums (m):
3.77
Logu skaits (gab.):
4 / 1 / 1
Loga izmērs (m):
1.40 x 1.05 / 0.75 x 1.05 / 2.15 x 2.10
Ārdurvju izmērs (m):
0.90 x 2.10
Iekšdurvju izmērs (m):
0.90 x 2.10
Terases platība (m²):
6.36

Papildus faili

caret-down


Papildus iespējas
Montāža, piegāde
Par papildus samaksu nodrošinām mūsu produkcijas piegādi, montāžu, kā arī citu papildus darbu veikšanu saskaņā ar vienošanos (pamati, komunikāciju tīkli, siltināšana, krāsošana u.c.)
Individuāli projekti
Bez sarežģījumiem izgatavojam arī individuālu projektu mājas saskaņā ar Jūsu skicēm, rasējumiem, idejām!
Saskaņošana būvvaldē
Par nelielu papildus samaksu nodrošinām mūsu māju projektu vienkāršoto saskaņošanu būvvaldēs 1.grupas ēkām, kā arī veicam pilna cikla projektēšanas darbus 2.grupas ēkām
Saņemt informāciju
Nosūtot šo ziņu, jums tiks sagatavots piedāvājums par produktu: Vecāķi

Vecāķi

19500
19900 €