Dārza māja, dārza birojs, vasarnīca, lapene, oranžērija – mūsu jaunā moderno mājiņu sērija ar visplašāko pielietojumu ! Šī gaisīgā telpa ar atbīdāmām stikla sienām ļaus baudīt saules siltumu un vasaras burvīgās smaržas nepieceļoties no sava iemīļotā atpūtas krēsla, vai dīvāna. Tomēr, vēsākos laika apstākļos durvis ir ērti aizbīdāmas, norobežojot no vējiem un aukstuma, bet saglabājot brīnišķīgos skatus uz Jūsu dārzu un apārtni!
Komplektācijā iekļauts
Imregnētas pamatu brusas 40x60mm, pa perimetru 80x60 mm;
Karkass no 45x45 mm brusām;
Sienas no 28mm frēzbrusām;
Jumts no 15mm spundētiem dēļiem;
Grīda no 19mm spundētiem dēļiem;
Koka spāres 40x120mm;
Vēja dēļi 15x100mm;
Bīdāmas stikla durvis ar rūdītu stiklu alumīnija rāmjos (rāmja krāsa - pelēks antracīts);
Durvju slēdzenes;
Koka aplodas 15x100mm;
Montāžas instrukcija.
Tehniskā informācija
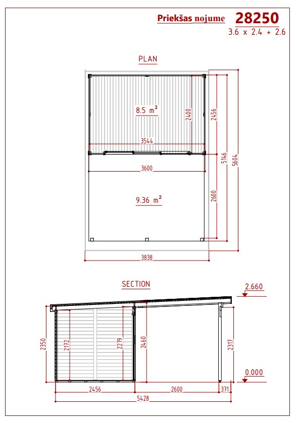
Sienu biezums (mm):
28mm
Iekšējā platība (m²):
8.5
Jumta forma:
Vienslīpes
Mājas forma:
Četrstūra
Ar grīdu / bez grīdas:
Ar grīdu
Iekšējais izmērs (m):
3.54 x 2.40 + nojume 2.60 x 3.60
Ārējais izmērs (m):
5.15 x 3.60 kopā ar nojumi
Apbūves platība (m²):
18.54
Jumta platība (m²):
20.70
Jumta pārkare priekšā (m):
2.60
Zemākās sienas augstums (m):
2.35
Kores augstums (m):
2.66
Ārdurvju izmērs (m):
2.58x2.02 ( trīs bloki)
Papildus komplektācija
28mm biezi spundēti grīdas dēļi + 95 Eur
Papildus iespējas
Montāža, piegāde
Par papildus samaksu nodrošinām mūsu produkcijas piegādi, montāžu, kā arī citu papildus darbu veikšanu saskaņā ar vienošanos (pamati, komunikāciju tīkli, siltināšana, krāsošana u.c.)
Individuāli projekti
Bez sarežģījumiem izgatavojam arī individuālu projektu mājas saskaņā ar Jūsu skicēm, rasējumiem, idejām!
Saskaņošana būvvaldē
Par nelielu papildus samaksu nodrošinām mūsu māju projektu vienkāršoto saskaņošanu būvvaldēs 1.grupas ēkām, kā arī veicam pilna cikla projektēšanas darbus 2.grupas ēkām
Saņemt informāciju
Nosūtot šo ziņu, jums tiks sagatavots piedāvājums par produktu: Savona 1 ar nojumi priekšā
Iesakām aprīkot savu dārza māju ar mūsu produktiem:
Savona 1 ar nojumi priekšā
2850 €
3060 €
Apraksts
Dārza māja, dārza birojs, vasarnīca, lapene, oranžērija – mūsu jaunā moderno mājiņu sērija ar visplašāko pielietojumu ! Šī gaisīgā telpa ar atbīdāmām stikla sienām ļaus baudīt saules siltumu un vasaras burvīgās smaržas nepieceļoties no sava iemīļotā atpūtas krēsla, vai dīvāna. Tomēr, vēsākos laika apstākļos durvis ir ērti aizbīdāmas, norobežojot no vējiem un aukstuma, bet saglabājot brīnišķīgos skatus uz Jūsu dārzu un apārtni!
Tehniskā informācija
Sienu biezums (mm):
28mm
Iekšējā platība (m²):
8.5
Jumta forma:
Vienslīpes
Mājas forma:
Četrstūra
Ar grīdu / bez grīdas:
Ar grīdu
Iekšējais izmērs (m):
3.54 x 2.40 + nojume 2.60 x 3.60
Ārējais izmērs (m):
5.15 x 3.60 kopā ar nojumi
Apbūves platība (m²):
18.54
Jumta platība (m²):
20.70
Jumta pārkare priekšā (m):
2.60
Zemākās sienas augstums (m):
2.35
Kores augstums (m):
2.66
Ārdurvju izmērs (m):
2.58x2.02 ( trīs bloki)
Komplektācijā iekļauts
Imregnētas pamatu brusas 40x60mm, pa perimetru 80x60 mm;
Karkass no 45x45 mm brusām;
Sienas no 28mm frēzbrusām;
Jumts no 15mm spundētiem dēļiem;
Grīda no 19mm spundētiem dēļiem;
Koka spāres 40x120mm;
Vēja dēļi 15x100mm;
Bīdāmas stikla durvis ar rūdītu stiklu alumīnija rāmjos (rāmja krāsa - pelēks antracīts);